詳細介紹
用途特點
GA42H型安全閥適用于溫度≤450℃的電站鍋爐和壓力容器上,防止壓力超過允許最高值,介質可為蒸汽、空氣。
主要零部件材料
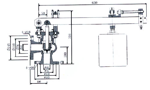
外形尺寸和連接尺寸(mm)
產品結構
| ||||||||||||||||||||||||||||||||||||||||||||||||||||||||||||||||||||||||||||||||||||||||||||||||||||||||||||||||||||||||||||||||||||||||||||||||||||||||||||||||||||||||||||||||||||||
溫馨提示:“GA42H單杠桿安全閥”所有文字、數據、圖片均只適用于參考。
如需與實物相吻合的性能參數、結構尺寸參數等詳情請來電來函索取。
電話:021-68103333 傳真:021-51686322
如需與實物相吻合的性能參數、結構尺寸參數等詳情請來電來函索取。
電話:021-68103333 傳真:021-51686322

軟密封蝶閥視頻介紹





掃一掃關注我們